Lotissement à la vente

04/10/2021

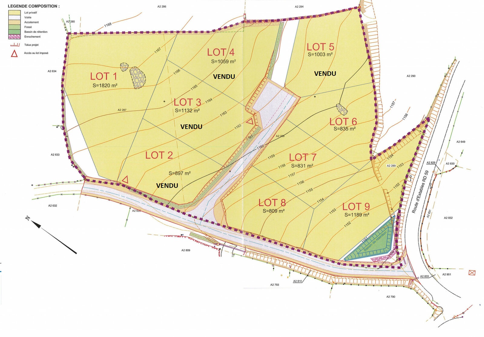
Lotissement les hauts de Cheyrouses

Renseignements au 04.66.47.33.31 ou par mail à montsderandon@orange.fr