Aller au contenu principal
Aller au pied de page
Cliquez ici
MA MAIRIE
Conseil Municipal
Les Elus
Procès Verbaux
Arrêtés règlementaires
Délibérations
Services municipaux
Administratif & technique
Objets trouvés
En ligne
Démarches administratives
Autorisations d'Urbanisme, Démarches & Arrêtés
Location des salles
Bullletin municipal
VIVRE ICI
Au quotidien
Santé & Services
France Services
Commerces, Artisans et Entreprises
Déchetterie
Eau
Portage de repas à domicile
Enfance / Jeunesse
Les écoles
Restauration scolaire
Garde d'enfants
Loisirs & Culture
Bibliothèque et Espace de Vie Sociale
Salle de sport
Associations
Agenda des festivités
Habitat & Urbanisme
Lotissements
RNU
DICRIM - PCS
TOURISME
La Commune
Histoire et Patrimoine
Plan de la commune
Galerie photos
Tourisme
Sentiers et randonnées
Camping municipal
Gîtes
Infos touristiques
Magazine
Magazine
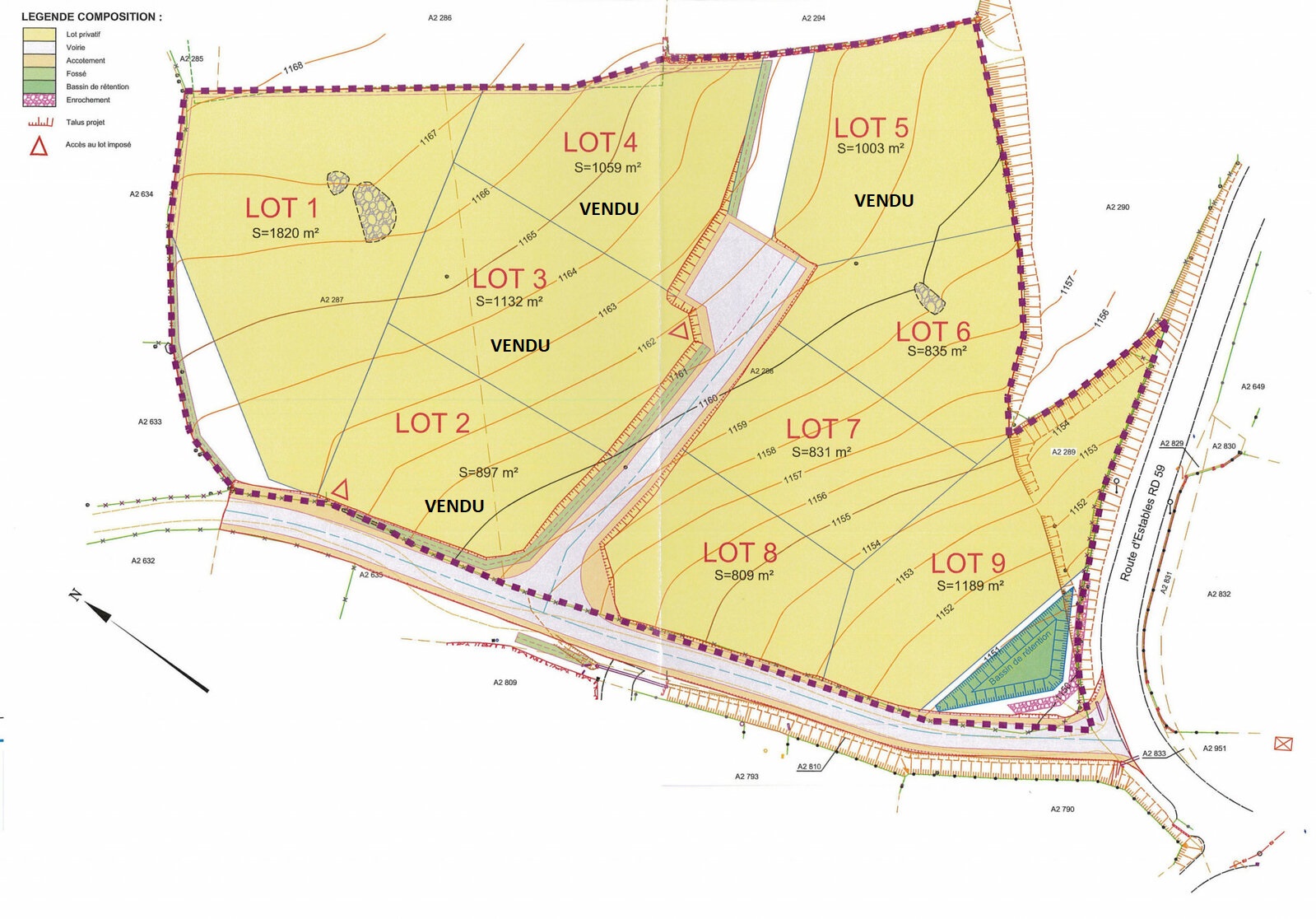
Lotissements à Monts-de-Randon
Lotissement les hauts de Cheyrouses
Renseignements au
04.66.47.33.31
ou
par mail
Plans
Tarifs : 40,80 € TTC par m²
Site réalisé et Suivi par AGEDI
- Hébergement Internet par Net15 -
Site administrable CMS propulsé par WebSee
-
Conditions Générales d'Utilisation
-
Gérer les cookies
Ce site utilise des cookies afin de mesurer la fréquentation du site, de vous proposer des contenus animés et interactifs et de partager du contenu sur les réseaux sociaux.
Personnaliser